农村自建房要考虑农民的风俗习惯,平面功能的组织要考虑当地普遍的民俗,包括家具的摆放避免与农村传统禁忌冲突,实地了解不同地域的习惯。比如农村自建农村四合院,要通过精巧的设计手法展现农村传统房子的气派和与时俱进。
图纸编号:TC2125
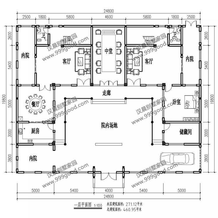
规格:24.8米米
占地面积:271.12平米
建筑面积:460.95平米
主体预算:56万左右


这个户型非常非常漂亮,符合春暖花开的意境。门前有照壁,避免了开门见山。所以盖房无论大门在那边都不影响。

能够看出这是一栋双拼的户型,左右对称,可以同时居住两家人。

平面图,内院有放扯车库的地方,中间是中堂,厨房餐厅公共。


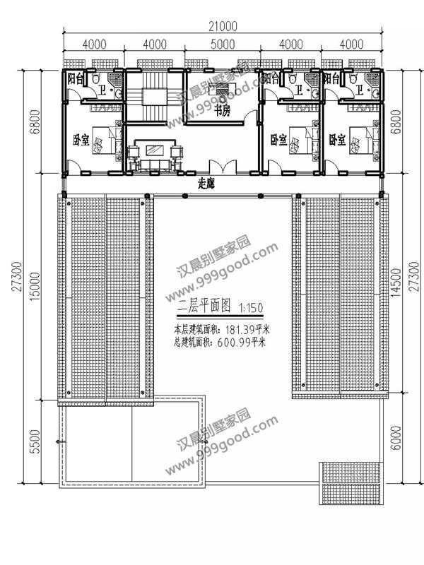
图纸编号:TC2103
建筑面积:600.99㎡
占地面积:419.60㎡
规格:21米米
建造预算:54万

一栋仿古的农村四合院设计,有车库有露台,门厅的设计非常独一无二。并且屋顶做成歇顶式,在你的村里恐怕难以找到第二款。



平面图,布局非常简单,没有传统古建筑的一步一景,更简化了繁文缛节的功能设施。二层有阁楼形式,每间卧室带有独卫。


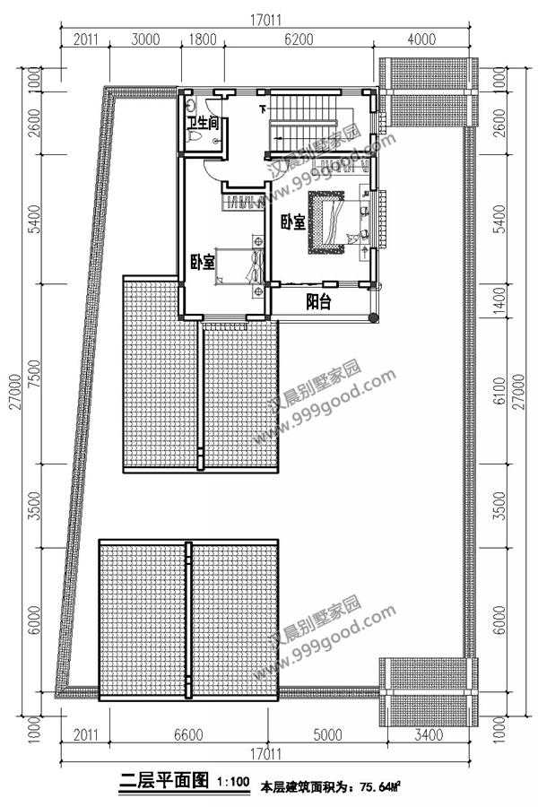
图纸编号:TC2111
建筑面积:268.78㎡
占地面积:131.82㎡
规格:17.011米x27米
建造预算:25万

此栋别墅为一河北小伙为生活在农村的父母盖的一栋合院别墅,由于宅地面宽小进深大,最后盖出来的效果还挺好。

方便停车,前后院门做成互通式。功能布局靠一面设计。

平面图,进门会客厅用于接待客人,中间为庭院,和厨房餐厅,靠近北面为客厅也可以用于家人休息聚会。二层两间小卧室作为备用房,以备不时之需。


版权声明:本站所有作品(图文、音视频)均由用户自行上传分享,仅供网友学习交流,不声明或保证其内容的正确性,如发现本站有涉嫌抄袭侵权/违法违规的内容。请举报,一经查实,本站将立刻删除。