现在人都已经感受到了买房的压力,能盖得起房子的一定会先选择老家盖栋别墅,解决了成家立业的问题后,后面再慢慢来,有了足够的钱后再去买房子。农村建房先要有一个总体的规划,那么具体的户型要多少的造价呢,下面给出3栋农村新中式别墅作为参考!
图纸编号:TC3238
建筑面积:369.99㎡
占地面积:155.94㎡
规格:15米x11米
建造预算:34万


户型整个的呈现的是阶梯的形式,立面采用浅色真石漆,外观上屋顶和线条的点缀上相互映衬

外墙还有一个小院子,屋顶的层次感和相应的空间变化一一对应,简洁不失大气。
平面功能总的功能设计有6卧室、2客厅、1厨房、1餐厅、5卫生间、1娱乐室,顶层两边为露台。



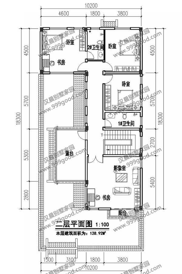
图纸编号:TC2102
建筑面积:274.893㎡
占地面积:145.97㎡
规格:10.2米米
建造预算:25万

中式徽派的建筑典型的不只有马头墙,还有简约耐看的人字斜顶,配合多边形的采光窗,多变且耐人寻味。

室内采用隔断的院子设计,有人会觉得稍显拥挤,当然关键在于你怎么看有的人就非常喜欢。

平面功能:总的功能设计有4卧室、1客厅、1厨房、1餐厅、4卫生间、1影音室,1茶室2书房顶层有阳台和露台。



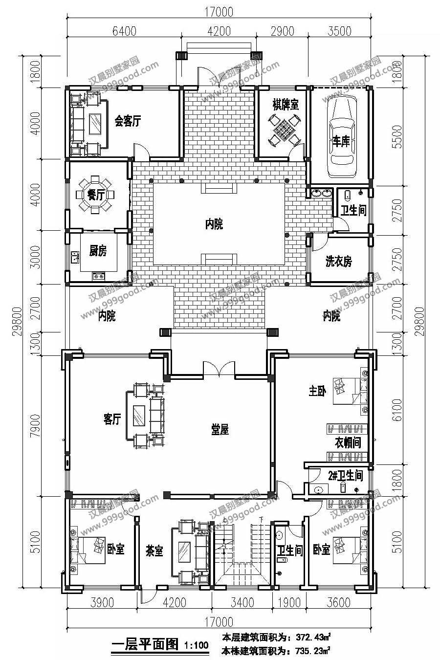
图纸编号:TC3239
建筑面积:735.23㎡
占地面积:372.43㎡
规格:17米米
建造预算:70万

户型是一个三合院的形式,局部三层,有露台链接自然和居室,让居住更自由。
别墅空间向内聚合,空间非常紧凑密集,与庭院结合密切,让自然美景融进生活。



总的功能设计有8卧室、3客厅、1茶室、1厨房、1餐厅、1洗衣房、1棋牌室、1车库、1堂屋、3衣帽间、6卫生间、2书房、1娱乐室,顶层为露台。



版权声明:本站所有作品(图文、音视频)均由用户自行上传分享,仅供网友学习交流,不声明或保证其内容的正确性,如发现本站有涉嫌抄袭侵权/违法违规的内容。请举报,一经查实,本站将立刻删除。