农村养老回乡盖别墅是浪费?越是有钱的人越想居住的舒服,一般在农村盖别墅的都会在城里有了一套房子,土豪建高楼大厦,咱们一般人就建个普通的也不错,说农村自建房浪费宅地的,这8栋二层农村别墅,实力打脸!
图纸编号:TC2132
规格:13.4米米
占地面积:185.34平米
建筑面积:361.26平米
主体预算:43万左右



别墅亮点:一层有棋牌室,方便邻居串门,亲朋好友聚会也增添了乐趣。客厅挑空和旋转楼梯搭配,经典又洋气,中间的书房也相当实用便捷。


图纸编号:TC2109
建筑面积:264.25㎡
占地面积:144.86㎡
规格:13.4米米
建造预算:30万


平面图亮点,一般两层不同意设置阳台露台等,此户型不仅有阳台,客厅也做了挑空设计。作为一个小户型来说,五间卧室的布局相当可以了。


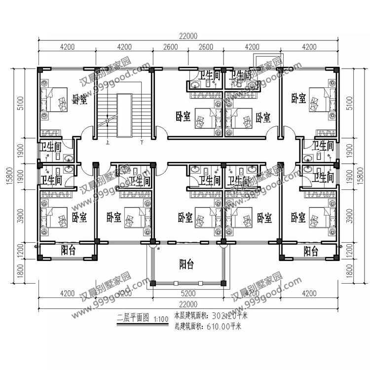
图纸编号:TC2128
规格:22米米
占地面积:307.8平米
建筑面积:610平米
主体预算:74万左右



平面图,光看外观就能看出这是一栋非常气派豪华的户型,中间门厅客厅阔度相当大。两个大餐厅,空间敞亮。

卧室相当多,每间卧室带有独立的卫生间,楼梯只是普通的直角楼梯,能够合理的利用宅地面积。

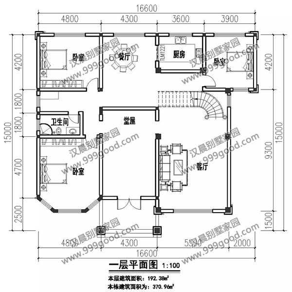
图纸编号:TC2107
建筑面积:370.96㎡
占地面积:192..38㎡
规格:16.6米x15米
建造预算:35万


平面图,中间有堂屋,进门两边都可以入居室内。右边客厅搭配有旋转楼梯;左边是卧室和餐厅等,洁污分区明显,同时也不是很方便。


图纸编号:TC2102
建筑面积:274.893㎡
占地面积:145.97㎡
规格:10.2米米
建造预算:25万


平面图,窄面宽的户型做成新中式造型最合适不过了,弥补了不够大气的缺点。户型的结构紧凑,进门便是内庭院。玄关隐蔽,院子和居室有很好的互动性,增添绿色生机。


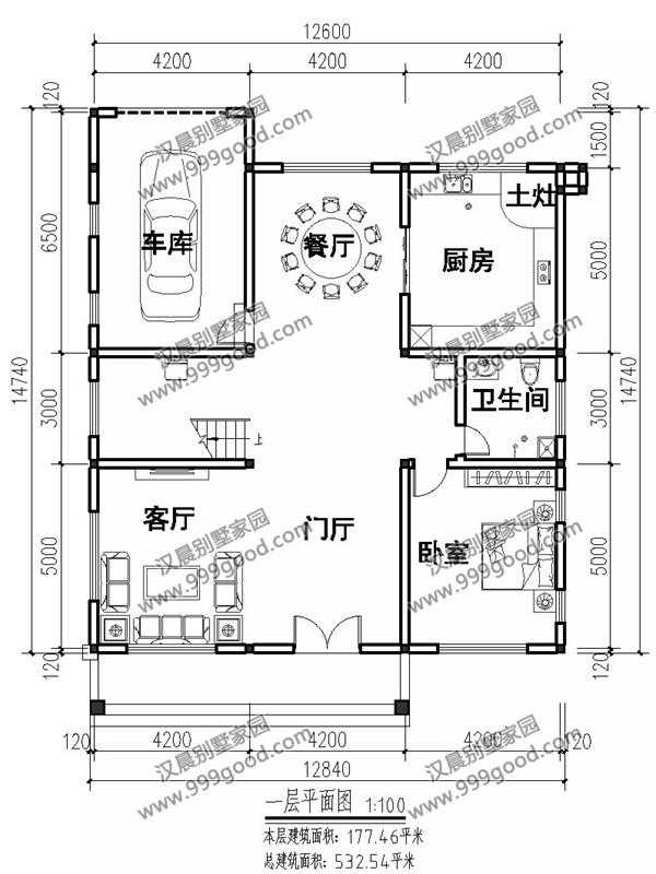
图纸编号:TC2100
建筑面积:532.54㎡
占地面积:177.46㎡
规格:12.6米米
建造预算:48万


平面图,这是一栋美式的自建房,一层有入户车库,放置在背面,避免影响整体的美观性。二层的卧室设置的稍微有点多,看上去比较拥挤。


顶层是一个阁楼的形式,只有一个间书房和一个家庭厅,四周暂时定为库房,如果精心装修一番后,可以成为一个独立的私人空间。

图纸编号:TC261
建筑面积:211.94㎡
占地面积:108.34㎡
规格:12米米
建造预算:18万



平面图,建造率最高的一栋二层别墅,外观漂亮带有点复古的元素,又结合了欧式别墅的特点,外观的配色上清新亮眼,非常适合农村自建


图纸编号:TC2121
规格:14.6米米
占地面积:200.57平米
建筑面积:407.42平米
主体预算:42万左右


平面图,户型根据一栋一层的平房改进而来,地下做了一个半地下室。有车库,杂物间、娱乐室、卧室等设计。二层外置楼梯,起居生活都在上面。


版权声明:本站所有作品(图文、音视频)均由用户自行上传分享,仅供网友学习交流,不声明或保证其内容的正确性,如发现本站有涉嫌抄袭侵权/违法违规的内容。请举报,一经查实,本站将立刻删除。