俗话说:落叶归根!老家就是我们的根,不管在外面多么辉煌多么的窘迫,家永远是你的港湾!城市的商品房房价年年上涨,而且产权也是有限的。老百姓虽然大多时间在城市上班务工,但是想在城市房的花费医生的血汗钱。所以越来越多的人选择在老家建房,包括有钱的大老板也纷纷在老家买地建别墅,农村别墅主要经济实惠,住起来心里还踏实。下面小编推荐几款经典优雅的二层农村别墅,赶紧收藏吧!
别墅方案一:
图纸编号:TC217;建筑层数:2层;占地面积:99.2平方米;建筑面积:204平方米;
开间尺寸:11米;进深尺寸:8.5米;主体参照造价:16万
房屋设计图简介:本套别墅为二层可独栋别墅设计图,外立面淳朴简单大气,造价约16万左右,采用砖混结构。
设计功能:
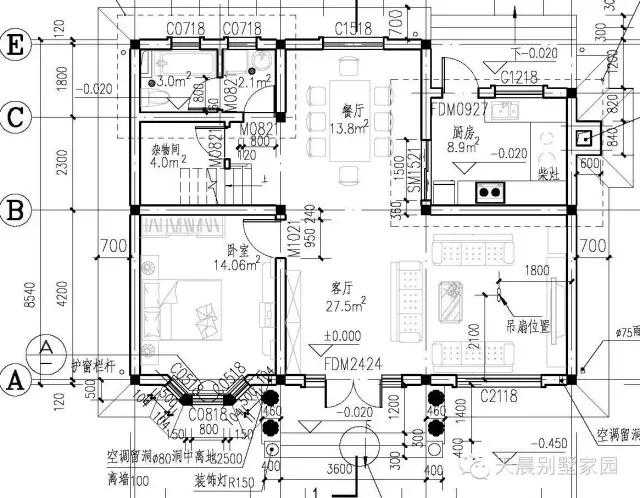
一层别墅设计图:客厅,餐厅,厨房,杂物间,卧室,卫生间。
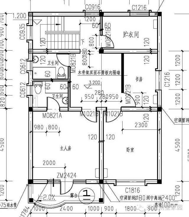
二层别墅设计图:卧室,主卧室,书房,卫生间,阳台,衣帽间,家庭室。

喜欢这些别墅的朋友可以添加设计师



别墅方案二:
图纸编号:TC220;建筑层数:2层;占地面积:83平方米;建筑面积:157.2平方米;
开间尺寸:9.7米;进深尺寸:11.3米;主体参照造价:15万
房屋设计图简介:本套别墅为二层可独栋别墅设计图,外立面淳朴简单大气,造价约15万左右,采用砖混结构。
设计功能:
一层别墅设计图:厨房,餐厅,客厅,洗衣房,杂物间,卫生间,卧室。
二层别墅设计图:主卧室,储藏间,起居室,卫生间,次卧室。




别墅方案三:
图纸编号:TC222;建筑层数:2层;占地面积:88.2平方米;建筑面积:162.5平方米;
开间尺寸:10.4米;进深尺寸:9.24米;主体参照造价:16万
房屋设计图简介:本套别墅为二层可独栋别墅设计图,外立面淳朴简单大气,造价约16万左右,采用砖混结构。
设计功能:
一层别墅设计图:客厅,卧室,杂物间,厨房,餐厅,卫生间。
二层别墅设计图:起居室,卧室,卫生间,晒台。




别墅方案四:
图纸编号:TC223;建筑层数:2层;占地面积:75平方米;建筑面积:120平方米;开间尺寸:8米;进深尺寸:11.6米;主体参照造价:15万
房屋设计图简介:本套别墅为二层可独栋别墅设计图,外立面淳朴简单大气,造价约15万左右,采用砖混结构。
设计功能:
一层别墅设计图:厨房,储藏间,餐厅,客厅,老人房,卧室,卫生间。
二层别墅设计图:主卧室,储衣间,书房,卫生间。




别墅方案五:
别墅图纸属性:图纸编号:TC237;建筑层数:2层;占地面积:160平方米;建筑面积:354.2平方米;开间尺寸:13.8米;进深尺寸:14米
主体参照造价:万28万
房屋设计图简介:本套别墅为独栋二层别墅设计图,带夹层,造价约28万左右,采用砖混结构。
设计功能:
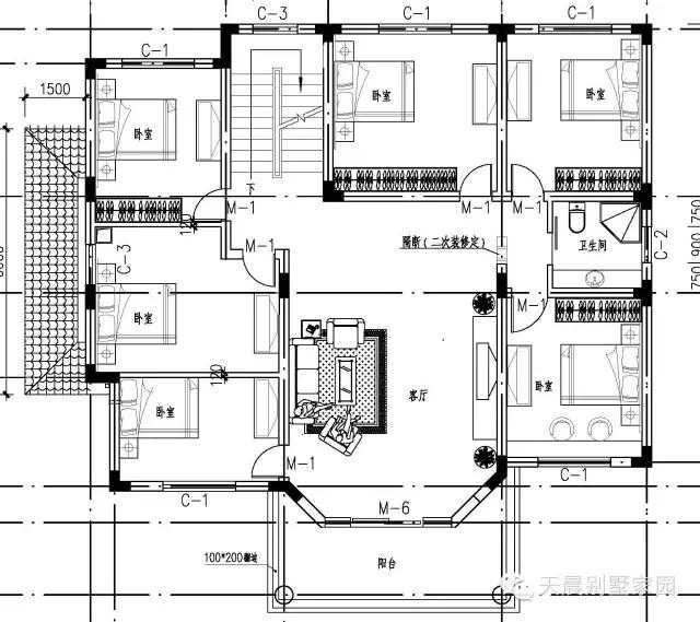
一层别墅设计图:卧室,卧室,卧室,厨房,客厅,卫生间,客房,餐厅;
二层别墅设计图:卧室,卧室,卧室,卧室,卧室,客厅,卫生间,卧室,阳台;



咨询QQ:1025529523全套图纸包含完整效果图预览,房屋平面设计、结构设计、建筑设计、水电设计以及各个细微部分的设计,图纸拿给施工人员即可立即施工!
版权声明:本站所有作品(图文、音视频)均由用户自行上传分享,仅供网友学习交流,不声明或保证其内容的正确性,如发现本站有涉嫌抄袭侵权/违法违规的内容。请举报,一经查实,本站将立刻删除。