农村自建房很多时候只是跟风,看别人家的新盖的户型好看也会跟着盖。完全不清楚自己想要什么样的户型或者没有根据实际情况来盖房。今天介绍5栋户型别致的别墅,独特新颖别人不一定模仿的来!
第一栋

新中式农村别墅,经典大气精美耐看,白墙黛瓦配合现代化的玻璃围栏,集现代和传统时尚有韵味。


图纸编号:TC2102
建筑面积:274.893㎡
占地面积:145.97㎡
规格:10.2米米
建造预算:25万


第二栋

这款是欧式常见的户型造型,几乎四面都有开窗,背面一部分没设置窗户是因为有楼梯和储藏室。


图纸编号:TC3251
规格:12米
占地面积:111.94平米
建筑面积:282.88平米



第三栋

有点偏“日式”风格的建筑,这种形式的户型非常宜居。造型层次感强,参差不齐的屋顶结构施工起来也不复杂。


图纸编号:TC268
建筑面积:365.56㎡
占地面积:214㎡
规格:16.6米米
建造预算:38万左右


第四栋

小二层的户型外观的风格取决于外墙的装修,类似上图的充满质感的深色系就偏向中式风,如果大量采用玻璃、落地窗等元素就偏向现代风。


图纸编号:TC2132
规格:13.4米米
占地面积:185.34平米
建筑面积:361.26平米
主体预算:43万左右


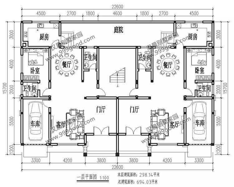
第五栋

大气的一栋双拼户型,露台非常多。左右对称的形式,中间必定是公共的空间。像这栋,中间共楼梯巧妙地将两户独立又联系起来,很有设计感。


图纸编号:TCL36
规格:22.6米米
占地面积:298.14平米
建筑面积:694.03平米
主体预算:70万左右



版权声明:本站所有作品(图文、音视频)均由用户自行上传分享,仅供网友学习交流,不声明或保证其内容的正确性,如发现本站有涉嫌抄袭侵权/违法违规的内容。请举报,一经查实,本站将立刻删除。