放眼绿色,参天古树,灿灿白沙,鸟语花香,让久居城市的您心灵回归自然,尽享大自然的美好,通过农村自建房,让中式建筑以一种更纯粹、更自然、更现代、更具生命力的品相展现在我们面前!

回农村盖房,着一方小院,开启悠闲的慢生活。

下面介绍一栋徽派中式含有院子的别墅

青灰瓦顶、灰白院墙、网格窗棂、高挑檐角,更有石、水、树的搭配,最为典型的江南园林风格。

别墅的里面效果图,有外花园和内庭院。

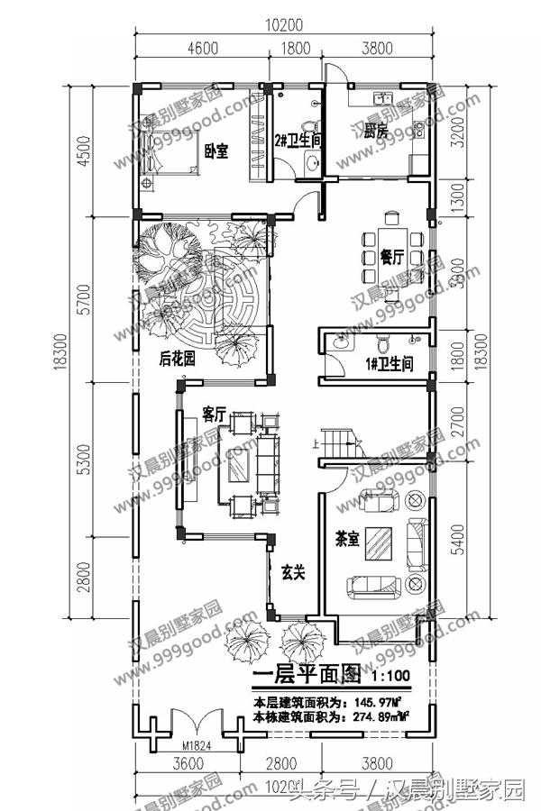
图纸编号:TC2102
建筑面积:274.893㎡
占地面积:145.97㎡
规格:10.2米米
建造预算:25万
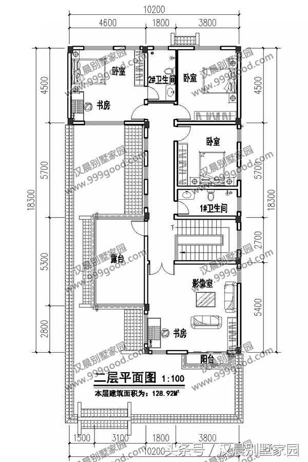
平面效果图

下沉式庭院、可变空间、错层分区和共享空间等设计手法在加强户型与周边环境的融合和对话上大大提高房子的性价比

布局上不会很冗杂,居住起来满眼都是生机勃勃的绿意,居住环境完美!
版权声明:本站所有作品(图文、音视频)均由用户自行上传分享,仅供网友学习交流,不声明或保证其内容的正确性,如发现本站有涉嫌抄袭侵权/违法违规的内容。请举报,一经查实,本站将立刻删除。